Overview
- 152 Rooms
- Category
- Apartments, Extended Stay, Hotels, Studio Zoned Apartments
Description

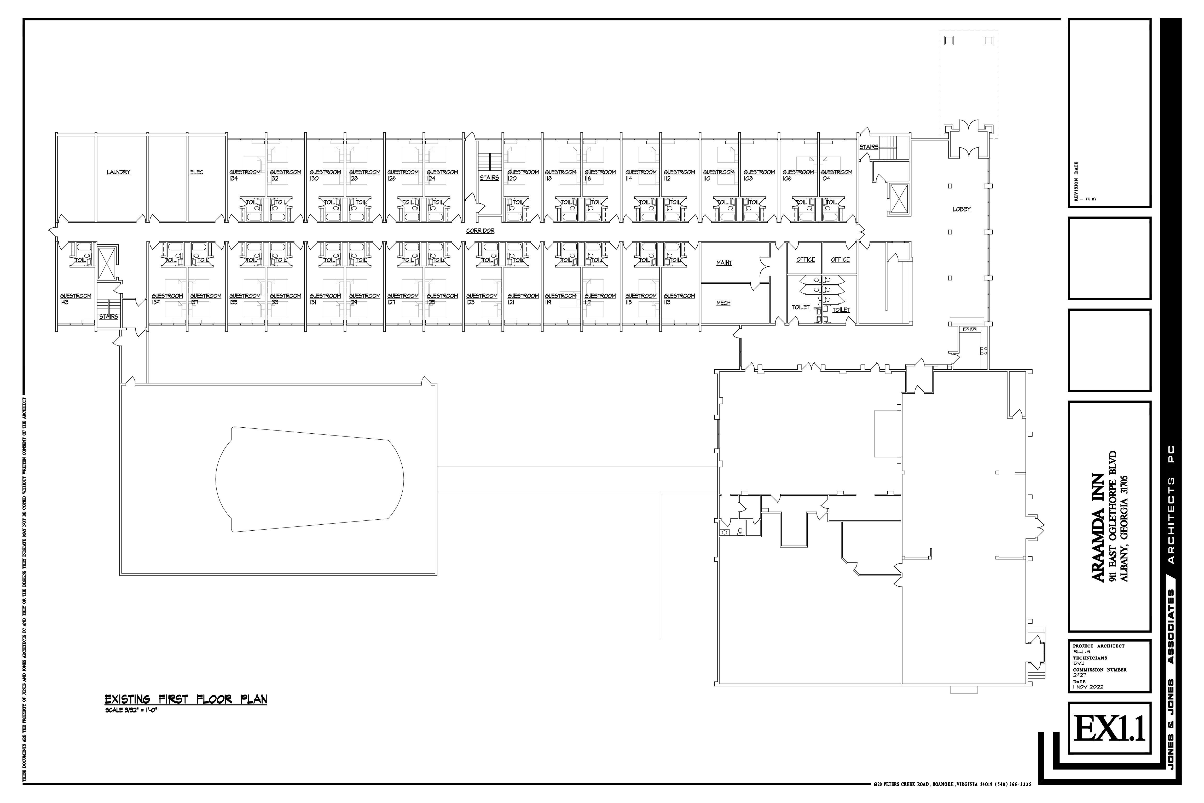
📍 911 E Oglethorpe Blvd, Albany, GA 31705
🛏 152 Units | Interior Corridors | Zoned Studio Apartments & Student Housing
1. Fully Zoned Studio Conversion Opportunity
Noble Suites presents a 152-unit repositioning opportunity fully zoned for studio apartments and student housing. With renovations permitted, investors can execute directly without entitlement uncertainty.
2. Flexible Operational Strategy
Offered as-is or fully renovated, the property will include kitchenettes upon completion. The layout supports studio apartment conversion, extended stay operation, or workforce housing stabilization depending on investment strategy.
3. Strategic Albany Location
Located minutes from Albany State University and downtown Albany, the property benefits from proximity to institutional demand drivers and established urban infrastructure.
4. Scale + Structure = Defined Upside
The 4-story interior corridor configuration provides operational efficiency and repositioning clarity. This is a structured value-add opportunity in a stable Georgia submarket.










